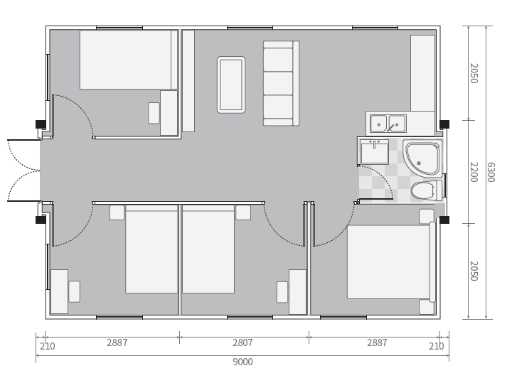
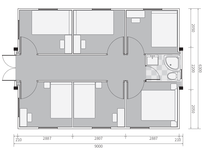
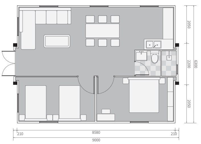
MODELO 54m2

Dimensiones externas: An.6320 x L.9000 x Al.2480 mm

Dimensiones internas: An.6160 x L.8580 x Al.2240 mm

Dimensiones plegadas: An.2200 x L.9000 x Al.2480 mm

Peso total aproximado: 5000 kg

Algunas de nuestras configuraciones

*Si la distribución que quieres no esta en esta entre estas opciones, consúltanos*

Interiores

Porche y tejado opcional

*Transporte y montaje incluido, sujetos de distancia/cercania, condiciones técnicas de la grua y campaña vigente *

Descubre otros modelos

DeWatermark.ai_1748681144285-removebg-preview_15x11-cm_9x5-cm
Modelo 18m2
16000

*IVA INCLUIDO*

WhatsApp_Image_2025-11-08_at_10.37.37__5_-removebg-preview_21x11-cm_11x5-cm
Modelo 36m2
22385

*IVA INCLUIDO*

Captura de pantalla 2025-04-26 095606-Photoroom(1)_22x11-cm_12x5-cm
Modelo 72m2
41500

*IVA INCLUIDO*